

鉴地
1万+
文章
869
阅读
2022
2022-07-23
这个叫做【中海学仕里】的项目,还不是在石景山新盘集中的五环外,而是在西四环边,毗邻百公顷的衙门口城市森林公园,靠近永定河休闲森林公园、冬奥森林公园、园博园,还是——
8-11层的低密度洋房,一梯两户,得房率超高。
(效果图)
“中海户型”是北京楼市的超强IP
如果说深耕石景山14年的中海地产,在这里打造的20多个精品社区,已经让石景山楼市深深烙上了中海的印记,那这一次以户型空间6.0面世的【中海学仕里】,则再一次让买房人兴奋起来。
实际上,几年前“中海户型”就成了北京楼市的超强IP,不断进阶的户型空间被购房者津津乐道,甚至出现了近年北京市场的“秒光”盘。这个我是有亲身体验的。
而空间系6.0的中海学仕里,又是怎样的存在?我以第一时间拿到的户型资料与大家分享。
中海学仕里的户型,包括建筑面积约72-115平米的两居至四居。既有上车级的72平米两居,总价500万起,也有最大115平米的四居,都做到了南北通透,全明格局。
这个72平米的两居,南北通透,每个房间都做到了舒适尺度,景观飘窗,还有小户型里不常见的宽大明厨,足够两人同时下厨。
最难得的是这个户型的充分收纳空间,还有一个放置洗衣机和清洁用品的独立家政间,这在小户型中非常少有。
总价约500万元起的这个户型,首付约200万元,很多人认为这是在西部工作的年轻人,难遇到的居住产品。而我了解的很多老年人,正在把原来的老破小卖掉,置换到生活品质高的居住区,这样的低总价小户型,没有支付压力,日常打扫便利,也是他们最想拥有的。
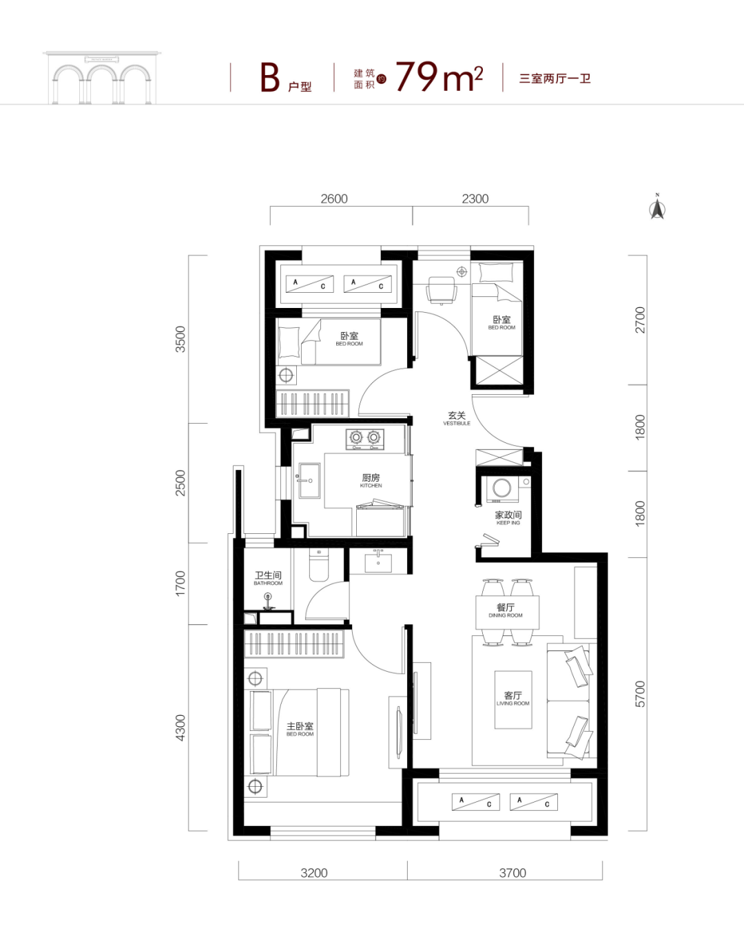
这个建筑面积约79平米的三室两厅户型,功能非常强大,除了南北通透、景观飘窗、独立家政间以外,还有好用的U型厨房,可变的居室空间,三分离的卫生间等等,收纳功能也是厘米级的存在。
两个89平米的三居户型,除了全明格局设计,每个房间尺度更舒适以外,最大的亮点是4.2米的宽厅、3.4米的主卧面宽,这是在这个面积段户型很少见的尺度。另外,四分离的卫生间,方便家庭成员在不同功能空间同时使用。
115平米的四室两厅两卫户型,南向面宽达到了约10.5米,卧室带飘窗,全明格局。每个房间都设置了收纳空间,两个相邻的北向卧室,空间可变,可以打通为一间,也可以用推拉门隔开。市场上能做到如此功能的户型,多在150平米以上。
中海学仕里的6.0户型空间可以从无限的成长性上,看到高使用率的空间福利;多元生活场景叠加的空间功能;全明通透的空间光照;每个房间大一号的空间尺度;充分关照面宽的空间格局;以及厘米级功能设计的空间效率。这些空间元素,足以支撑“中海户型”继续成为超强IP。
立体交通助力衙门口进阶
中海学仕里是北京今年二次土拍拿的地,时隔不到50天,项目即亮相。

(效果图)
几乎是中海学仕里亮相的同时,根据刚公示的《北京市轨道交通第三期建设规划》,11号线的二期即将进入建设周期,从新首钢,到洋桥,中间途经新首钢东南区、衙门口、丽泽商务区等城市功能区。
根据站点布局,M11号线鲁谷大街站与中海学仕里项目的直线距离不到800米。
随着衙门口棚改项目加快建设,这里的便民配套工程也加快了部署进程。
目前中海学仕里周边已经形成了“四横四纵”畅达路网+地铁双站。
“四横”是长安街、莲石路、梅市口路、京港澳高速。从项目出发车行5分钟可驶入莲石路,30分钟到达西二环天宁寺桥,全程无红绿灯。
“四纵”是西五环、西四环、玉泉路、鲁谷大街,畅达五棵松、丽泽商务区、中关村、金融街。
11号线双站衙门口东、鲁谷大街两站,横穿项目北侧,可便捷换乘6号线、1号线、S1线。
无论开车还是坐地铁,未来从这里出发,可以快速通达金融街、中关村、丽泽等核心商务区。
中海学仕里西边10分钟直达成熟的万达商圈,包括万达广场、泰禾长安中心、台湾街等石景山核心商业、美食地标。
项目边上的爱乐实验小学,可直升石景山排名第一的重点中学京源学校;东北侧新增基础教育用地,确定建设东城区名校北京一七一中学。优质教育配套将成为这里的重要特色。
15分钟车程内可达北京朝阳医院京西分院、石景山医院、解放军总医院301医院、302医院、空军总医院、天坛体院等一流医疗机构。
这里是石景山,这里是中海地产
中海在石景山深耕多年,打造了20余个高品质社区,也成就了石景山一个又一个片区:
2014年,老古城片区首个项目是中海金石公馆;
2018年,北辛安片区首个项目是中海寰宇天下;
2019年,首钢东南区首个项目是中海长安云锦;
三个片区,从首个到多个,从静态到城市繁华。
2022年,衙门口片区首个项目即是中海学仕里,这是中海在石景山把握机遇进入的第四个片区,以更高的设计标准出手,将带来怎样的蝶变,非常值得期待。
有着北京四环的硬核配套,加上代表中海强IP的户型空间6.0设计,总价500万起的低密洋房,这样的中海学仕里被关注,代表着成熟的市场环境下,买房人对价值楼盘的理性认同。

现场海花有约私董会128期与来自企业的翘楚们针对行业热门话题当堂论剑,通...

2021年4月10日,冰雪旅游产业落户大湾区全球发布会在新华网演播中心成功...
